



kalkulator opłat
kurs walut
1 usd - 3.6528
1 eur - 4.2668
1 chf - 4.5705
1 gbp - 4.8819
100 jpy - 2.4392
1 rub - 0.0380
| LOKAL - WYNAJEM | |
| Lokal Centrum Człuchów | |
| Symbol | 22/EWS/LW |
| Rodzaj nieruchomości | LOKAL |
| Rodzaj transakcji | WYNAJEM |
| Status | oferta aktualna |
| Dostępne do wynajmu od | 2026-04-01 |
| Kraj | POLSKA |
| Województwo | POMORSKIE |
| Powiat | człuchowski |
| Gmina | Człuchów |
| Miejscowość | Człuchów |
| Kod pocztowy | 77-300 |
| Ulica | Zamkowa |
| Nr domu | 3 |
| Położenie | CENTRUM MIASTA |
| Budynki w sąsiedztwie | OSIEDLE BLOKÓW MIESZKALNYCH, OBIEKTY HANDLOWE |
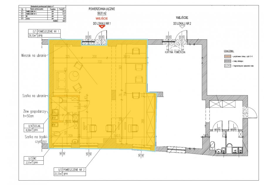
| Powierzchnia całkowita | 59,01 m² |
| Powierzchnia użytkowa | 59,01 m² |
| Forma własności działki | WŁASNOŚĆ |
| Rodzaj lokalu / przeznaczenie | HANDLOWO-USŁUGOWY |
| Typ lokalu/umiejscowienie | BUDYNEK WOLNOSTOJĄCY |
| Rodzaj budynku | ODDZIELNY OBIEKT |
| Standard | BARDZO DOBRY |
| Stan budynku | BARDZO DOBRY |
| Droga dojazdowa | GŁÓWNA DROGA |
| Źródło c.w. | ELEKTR. PRZEPŁYWOWY |
| Ogrzewanie | C.O. Z SIECI MIEJSKIEJ |
| Forma własności | PEŁNA WŁASNOŚĆ |
| Rodzaj kanalizacji | MIEJSKA |
| Rodzaj okien | PLASTIKOWE |
| Rodzaj podłogi | GRES |
| Nr Licencji | 12391 |

Mateusz Kreft
licencja: 12391
telefon: 513 122 098
biuro@e-westa.pl
Do wynajęcia lokal użytkowy o powierzchni 59,01 m², położony w ścisłym centrum miasta Człuchów. Nieruchomość znajduje się w kameralnym budynku trójlokalowym, w doskonale widocznej i uczęszczanej lokalizacji – bezpośrednio przy wejściu na deptak miejski oraz przy głównej ulicy.
Lokal jest świeżo po remoncie, gotowy do rozpoczęcia działalności bez dodatkowych nakładów finansowych. Duże witryny okienne zapewniają świetną ekspozycję oraz doskonałe doświetlenie wnętrza, co czyni go idealnym miejscem na działalność handlową, usługową lub biurową. Ogrzewanie miejskie. Bezpośrednio przy budynku znajdują się miejsca postojowe, co stanowi duże udogodnienie zarówno dla klientów, jak i właściciela. W tym samym budynku funkcjonuje sklep sieci Żabka oraz zakład fryzjerski, co generuje stały ruch klientów. W najbliższym sąsiedztwie mieszczą się również sklep sieci KiK oraz sklep wielobranżowy (tzw. sklep chiński), co dodatkowo zwiększa atrakcyjność lokalizacji pod kątem handlowym.
To doskonała propozycja dla przedsiębiorcy poszukującego lokalu w strategicznym punkcie miasta, o dużym potencjale komercyjnym i świetnej widoczności.
data dodania oferty: 08-05-2025, data aktualizacji: 02-03-2026
Treść niniejszego ogłoszenia nie stanowi oferty handlowej w rozumieniu Kodeksu Cywilnego. Treść ma charakter informacyjny i zalecamy ich osobistą weryfikację. Kontaktując się z biurem Klient wyraża zgodę na przetwarzanie danych osobowych zgodnie z przepisami ustawy z dnia 29 sierpnia 1997 roku o ochronie danych osobowych / Dz.U.Nr. 133 poz. 883/. Klientowi przysługuje prawo do wglądu do swoich danych osobowych i ich aktualizacji.
OfertyKalkulatorNotatnikKontaktO firmieSprzedaj swoją nieruchomośćKredytyWynajem krótkoterminowyADRESOWO
© copyrights 2014-2026 - Biuro Nieruchomości e-westastrona oparta o mediaRent - program dla biur nieruchomości online - projekt i realizacja MD